区发改委、区规资局、区城管局、区民政局、区残联、各街道办事处、区城市发展集团:
为深入贯彻落实国务院印发的《深入实施以人为本的新型城镇化战略五年行动计划》(国发〔2024〕17号)、住建部办公厅印发的《关于进一步加强城市无障碍设施建设工作的通知》(建办城〔2025〕7号)有关要求,着力破解山地地形下适老化改造难点,推动打造安全、便捷、舒适的老年人居住环境,经我委审议通过印发了《山地城市老旧住区适老化改造技术导则》,自即日起执行。请各有关单位及时组织学习,并认真贯彻执行。
附件:《山地城市老旧住区适老化改造技术导则》
重庆市渝中区住房和城市建设委员会
2025年11月7日
附件
前 言
住房城乡建设部办公厅发布的《关于进一步加强城市无障碍设施建设工作的通知》(建办城〔2025〕7号)文件提出,要进一步提升城市无障碍设施建设水平,统筹适老化设施建设,打造安全便捷、连续贯通、多元包容的无障碍和适老化环境。为积极应对人口老龄化,加快推进老旧住区适老化改造工作,重庆市渝中区住房和城市建设委员会组织编制了《山地城市老旧住区适老化改造技术导则》(以下简称《导则》)。
编制组经调查研究与实地考察,结合重庆市山地地形特点与人口老龄化现状,在广泛征求意见的基础上,组织专家评审定稿,编制了本《导则》。
本导则共分为8章。主要包括:总则、术语、基本规定、体检与策划、通行系统、住区环境、配套空间和信息与服务。
各单位和个人在执行过程中,如发现需要修改或补充之处,请将建议和有关资料发送至中煤科工重庆设计研究院(集团)有限公司(地址:重庆市渝中区长江二路179号,邮编:400010,Email:1063282459@qq.com)以供修订时参考。
本导则主编单位及主要起草人:
主编单位:重庆市渝中区重点项目建设事务中心
中煤科工重庆设计研究院(集团)有限公司
主要起草人:唐柏君、秦砚瑶、程瑜、尹静秋、吴思睿、梁健、左培丁、邬锦、吉鑫、杨金川、曾理、董莉莉、陈健、张胜强、祁乾龙、王振、康骏、黄朝晖、陈琦、杨第、王国珏、刘康杰、吴学荣、邱玲、王院、胡文锐、李兆正、田德辉、张红、沈洋军、刘映灼、王爱玲、刘国徽、郝娟、唐黎、韦刚、秦正、李雷亮、杜晋兰、李素鸽、潘荣
目 录
1总则
2术语
3基本规定
4体检与策划
4.1 一般规定
4.2 改造前体检
4.3 改造策划
5通行系统
5.1一般规定
5.2出入口
5.3道路交通
5.4停车场地
5.5通道走廊
5.6垂直交通设施
6住区环境
6.1一般规定
6.2绿地景观
6.3活动场地
6.4照明系统
7配套空间
7.1一般规定
7.2服务活动用房
7.3公共卫生间
8信息与服务
8.1一般规定
8.2标识系统
8.3智能化系统
8.4社区服务
规范性引用文件
1.0.1为适应重庆市人口老龄化趋势,规范山地城市老旧住区适老化环境的改造设计,改善老年人居住环境,提高老年人生活品质,制定本导则。
1.0.2本导则适用于山地城市老旧住区公共空间和环境的适老化改造设计,包括通行系统、住区环境、配套空间和信息与服务等内容。
1.0.3 老旧住区适老化改造应遵循政府引导统筹协调,发挥居民主体作用,调动社会力量参与,实现共谋、共建、共管、共享。
1.0.4老旧住区适老化改造,除应符合本导则外,尚应符合国家、行业、重庆市现行有关标准的规定。
1.0.5老旧住区适老化改造应符合国家相关标准要求,当条件不具备、执行现行规范确有困难时,应不低于原建造时的标准。
2.0.1山地城市
指交通组织、用地布局、生态环境、历史文化特色等受地形影响明显,且地表平均坡度大于10%,或相对高差大于50m/km2占比大于20%的城市区域。
老旧住区是指2000年以前建成的住宅小区(含单栋住宅楼)。
以满足老年人安全、便利、舒适、健康等需求为目的,对居住区的通行系统、住区环境、配套空间以及信息与服务进行的改造。
2.0.4便民坡道
通过优化铺装材质与构造设计,为有需求人群设置的通行坡道。
2.0.5垂直交通设施
为满足山地城市老旧住区建筑不同标高层面间通行需求设置的交通载体,包括楼梯和台阶、电梯、便民提升机等。
辅助老年人等有需求群体垂直或斜向跨越高差区域的机械升降装置。
2.0.7坡地建筑
依坡地地形建造,有多个自然层与室外设计地面相连接的建筑。
辅助老年人日常生活的器具。主要作用是保障老年人在日常生活环境中的安全,提高老年人独立生活的能力,减轻护理者的护理强度,提高护理效率。
3.0.1 适老化改造宜与老旧小区改造、住区城市更新等统筹规划实施。
3.0.2 适老化改造应在满足老年人生活需求的同时,不妨碍其他人员的正常使用。
3.0.3 当进行适老化改造有困难时,应分区域进行改造,不具备适老化改造条件的,应采取必要的替代性措施。
3.0.4 适老化改造应遵循安全性、实用性、舒适性、可持续性原则,并综合考虑项目现状。
1 适老化改造应以安全为首要原则,在安全的前提下,对于住区的通行系统、住区环境、配套空间、信息与服务等方面采取安全措施、消除安全隐患;
2 适老化改造应因地制宜,合理布局住区中的各种服务功能,选用适合老年人的设施设备;
3 适老化改造应保证老年人生理心理层面的舒适性;
4 考虑到老年人因身体机能衰弱而引发的对外部空间需求的改变,适老化改造应具有可持续性。
3.0.5 适老化改造应注重老年人与家人、邻里、社区的交流,提供人性化尺度的环境,增强家庭归属感和社区参与感。
3.0.6 适老化改造应基于老年人群体的个体差异、身体机能等各个方面的特点,设置有针对性的标识系统、照明系统、应急疏散系统、安全监测系统、自动报警系统、紧急呼叫系统、服务活动用房等。
3.0.7 适老化改造应选用满足安全、绿色、节能、环保要求的材料,应考虑设施设备安全、节能及维护便利性。
3.0.8 针对山地城市特征,适老化改造宜采取高差处理、防滑排水、边坡防护等技术措施,消除住区安全隐患。
3.0.9 适老化改造应合理应用人工智能、物联网、大数据等新兴技术,并为其提供安装条件。
3.0.10适老化改造应结合老旧小区改造统筹设计,改造内容可参照表3-1执行。
表3-1 适老化改造内容
|
类别 |
内容 | |
|
通行系统 |
出入口 |
住区出入口、建筑出入口 |
|
道路交通 |
车行道、人行道、便民坡道 | |
|
通道走廊 |
地面、扶手、墙角墙面 | |
|
停车场地 |
机动车停车位、非机动车停车点 | |
|
垂直交通设施 |
楼梯和台阶、电梯、候梯厅、便民提升机 | |
|
住区环境 |
绿地景观 |
绿化植被、园林小品 |
|
活动场地 |
活动空间、休息座椅 | |
|
照明系统 |
道路照明、公共空间照明 | |
|
配套空间 |
服务活动用房 |
老年人日间照料中心、卫生服务站、 便民服务站、商业网点 |
|
公共卫生间 |
小便器、坐便器、洗手台 | |
|
信息与服务 |
标识系统 |
引导标识、设施标识、警示标识 |
|
智能化系统 |
视频监控系统、自动报警系统、紧急呼叫系统 | |
|
社区服务 |
物业服务、居民公约、沟通调解、心理疏导 | |
4.1 一般规定
4.1.1 老旧住区适老化改造前应根据改造需求,对住区的通行系统、住区环境、配套空间和信息与服务进行体检。
4.1.2 体检可结合实际改造范围对内容进行调整,开展局部或全面体检。
4.1.3 体检应进行民意调查,了解老年人的改造意见、主要需求和对改造的建议。
4.1.4 体检应体现以人为本原则,从适宜性、必要性以及经济性出发,针对老年人典型活动场景,考虑老年人的使用需求,根据体检结果,确认改造技术项,并予以公示。
4.1.5 体检后应由专业技术人员依据体检结果提出老旧住区适老化改造策划,并由建设方组织评审通过后方可实施。
4.2 改造前体检
4.2.1 改造前体检可采用现场调研、问卷调查、数据分析等手段,查明存在隐患,确认具体改造内容。
4.2.2 通行系统体检包括以下内容:
1 各类型出入口,包括位置合理、空间通畅、安全设施齐全等;
2 道路交通,包括道路可达、路面平整、坡度合理等;
3 通道走廊,包括地面平整、空间通畅、安全设施齐全等;
4 停车场地,包括位置合理、地面平整、空间充足等;
5 垂直交通设施,包括位置合理、使用便利、安全设施齐全等。
4.2.3 住区环境体检包括以下内容:
1 绿地景观,包括植物设置合理、设施使用安全等;
2 活动场地,包括地面平整、设施齐全、使用安全等;
3 照明系统,包括室内外照明的亮度、控制方式等。
4.2.4 配套空间体检包括以下内容:
1 服务活动用房,包括位置合理、使用安全、类型多样等;
2 公共卫生间,包括地面平整、设施齐全、使用安全等。
4.2.5 信息与服务体检包括以下内容:
1 标识系统,包括设置合理、标识明显、指引正确等;
2 智能化系统,包括应急疏散、视频监控、自动报警、紧急呼叫等系统设置情况;
3 社区服务,包括居民服务、居民公约、沟通调解、心理疏导等。
4.3 改造策划
4.3.1 老旧住区适老化改造策划主要包括:改造目标、体检结果分析与评估、改造内容规划、具体实施措施等内容。
4.3.2改造目标
对国家政策、现行标准、规范及实施情况进行归纳总结,根据住区情况,提出适老化改造的目标。
4.3.3体检结果分析与评估
基于定性与定量方法,对住区通行系统、住区环境、配套空间和信息与服务的体检结果进行分析评估。
4.3.4改造内容策划
结合改造目标和体检结果,确定住区通行系统、住区环境、配套空间和信息与服务的具体改造内容与方案。
4.3.5策划实施措施
结合改造目标与内容,明确建设时序与投资估算,制定具体实施措施。
5.1一般规定
5.1.1 通行系统适老化改造包括出入口、道路交通、停车场地、通道走廊和垂直交通设施等内容。
5.1.2 住区内部通行系统应布局明确,应根据山地立体化地理特征和住区内老人出行的实际需要重新进行优化梳理,优化路网结构,打通内部断路,提高通行便利性。
5.1.3 通行系统应保障住区内各个区域的可达性与可识性,道路之间应有明显的方向指引标志。
5.1.4 为保障住区内老年人的行走安全,住区宜对通行系统进行人车分流,并设置紧急送医通道,紧急送医通道应保持畅通。
5.1.5 住区内的步行系统宜独立完整,覆盖老年人活动的所有场地、建筑,通过分段设置便民坡道、便民提升机等方式形成连贯的适老化通行流线,合理缩短老年人日常出行的距离,避免绕行,保证老年人便捷出行。
5.1.6 地面应选用平整、防滑、耐磨、耐压、透水性好、无反光、色彩鲜明的铺装材料,并保证施工平整度,防滑性能应符合表5-1和表5-2的规定。
表5-1 室外及室内潮湿地面工程防滑性能规定
|
工程部位 |
防滑等级 |
防滑安全程度 |
防滑值BPN |
|
通行设施的地面 |
AW |
高 |
BPN≥80 |
|
活动场地的地面 |
BW |
中高 |
80>BPN≥60 |
|
公共卫生间的地面 |
AW |
高 |
BPN≥80 |
注:AW、BW分别表示潮湿地面防滑安全程度为高级、中高级。
表5-2 室内干态地面工程防滑性能规定
|
工程部位 |
防滑等级 |
防滑安全程度 |
防滑值COF |
|
通行设施的地面 |
Ad |
高 |
COF≥0.70 |
|
活动场地的地面 |
Bd |
中高 |
0.70>COF≥0.60 |
|
公共卫生间的地面 |
Ad |
高 |
COF≥0.70 |
注:Ad、Bd分别表示干态地面防滑安全程度为高级、中高级。
5.1.7 当通行条件受限时,应考虑使用提升机或其他设施设备辅助通行。
5.2出入口
5.2.1 出入口的适老化改造包括住区出入口、建筑出入口等内容。
5.2.2 住区出入口的适老化改造应符合以下规定:
1 住区主要出入口处应设置明显标识,提醒此处有老年人通行,机动车需放慢车速、谨慎通过;
2 设置出入口闸机时,至少有一台开启后的通行净宽不应小于0.90m,或者在紧邻闸机处设置供乘轮椅者通行的出入口,通行净宽不应小于0.90m;
3 特殊物品(如医疗设备、大件货物等)的运输宜设置独立出入口及通道,并采取遮蔽措施减少对公共空间的影响。
5.2.3 建筑出入口的适老化改造应符合以下规定:
1 出入口宜采用以下形式之一:
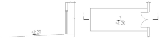
(1)地面坡度不大于1:20的平坡出入口;
(2)同时设置台阶和坡道的出入口;
(3)同时设置台阶和便民提升机的出入口。

图5.1-1 平坡出入口示意图

图5.1-2 台阶和坡道出入口示意图

图5.1-3 台阶和便民提升机出入口示意图
2 出入口的外门通行净宽不应小于1.20m;
3 坡面上应加设不凸出坡面的防滑条;
4 出入口内外应设置直径不小于1.50m的轮椅回转空间,以便于乘坐轮椅的老年人回转和调整方向;
5 宜在出入口处增设雨篷,雨篷的宽度应能够覆盖出入口的平台,宜覆盖所有台阶踏步和坡道,雨篷的排水管应避开下方坡道、台阶;
6 各楼栋首层出入口处宜设置救护车停车泊位,并与住区紧急送医通道相连。
5.3道路交通
5.3.1 道路交通的适老化改造包括车行道路、人行道路、便民坡道等内容。
5.3.2 车行道路的适老化改造应符合以下规定:
1 住区车行道路应简洁流畅,方便救护车、消防车通行,且能顺畅到达所需停靠的建筑出入口;
2 住区车行道在出入口、交叉口和道路转弯处宜设置减速带、安全岛、反光镜或明显的标识;
3 车行道路宜采用低噪或降噪路面。
5.3.3 人行道路的适老化改造应符合以下规定:
1 应与各类型出入口相连,并与住区外市政人行道进行无障碍衔接;
2 人行道宽度应合理考虑轮椅错车空间,在老年人使用频繁和路面有高差处应设置扶手;
3 有条件时,人行道路宜设置风雨廊等避雨设施,且每隔25m宜设置休息座椅或休息栏杆,栏杆高度宜为850mm~900mm并在座椅旁预留轮椅停留空间;
4 宜利用人行道路与建筑之间的过渡空间,打造具有休憩、社交等适老化功能的场所。
5.3.4 便民坡道的适老化改造应符合以下规定:
1 住区内部有高差处应设置便民坡道;
2 便民坡道的通行净宽不宜小于1.20m,当条件受限时,不应小于0.90m;
3 便民坡道纵向坡度不宜大于1:12,当条件受限时,可根据坡道高度对坡度进行调整,同时采用防滑铺装,便民坡道的最大高度和水平长度应符合表5-3的规定;
表5-3 便民坡道的最大高度和水平长度
|
坡度 |
1:10 |
1:8 |
1:6 |
1:4 |
1:2 |
|
最大高度(m) |
0.60 |
0.35 |
0.20 |
0.08 |
0.04 |
|
水平长度(m) |
6.00 |
2.80 |
1.20 |
0.32 |
0.08 |
4 每节坡道的高差不应超过750mm;
5 便民坡道休息平台的通行净宽不应小于坡道的通行净宽,水平长度不应小于1.50m;
6 便民坡道的提升高度大于300mm,且纵向坡度大于1:20时,应在两侧设置连续扶手。


图5.2 便民坡道示意图
5.4停车场地
5.4.1停车场地的适老化改造包括机动车停车位、非机动车停车点等内容。
5.4.2 机动车停车位的适老化改造应符合以下规定:
1 住区内的机动车停车位应布置于住区道路远离住宅的一侧,且远离老年人活动区域;
2 机动车停车位宽度不应小于2.50m,一侧应设置宽度不小于1.20m的轮椅通道;当条件受限时,宜因地制宜,结合场地条件整体规划停车位,利用车位周边空间满足轮椅通行需求;
3 应与适老化设施衔接,且宜靠近建筑的主要出入口或停车场出入口;
4 地面应设置停车线和引导标识;
5 机动车停车位宜设置充电桩。

图5.3 停车位适老化改造示意图
5.4.3 非机动车停车点的适老化改造应符合以下规定:
1 靠近建筑主要出入口应设置专供老年人使用的非机动车停车点;
2 非机动车停车位宜设置充电桩,方便老年人使用。
5.5通道走廊
5.5.1 通道走廊通行净宽不应小于1.20m,净高不应低于2.20m,走道通行空间内不应有影响通行及疏散的突出物。

图5.4 通道走廊示意图
5.5.2 扶手的适老化改造应符合以下规定:
1 通道走廊中宜增设连续双层扶手,其中上层扶手高度约为850mm~900mm,下层扶手高度约为650mm~700mm,扶手与墙间应有40mm~50mm的空隙,扶手直径宜为38mm;
2 扶手设置不应影响疏散宽度;
3 扶手应与背景有明显的颜色或亮度对比;
4 扶手转角作圆角处理,扶手端部向下方或墙壁方向弯曲;
5 扶手安装时宜在墙体上增加一层背板加固,以保证安全性。
|
图5.5 连续扶手示意图 |
图5.6 扶手示意图 |
5.5.3 通道走廊内,转弯处的墙角及障碍物边缘宜改造为圆弧,倒角半径宜为6mm或45°角,同时不应影响通行宽度。
5.5.4 如现状墙体有面层脱离的情况,应对墙面重新进行整改粉刷。
5.5.5 在不影响消防疏散宽度的前提下,宜在公共空间中设置90°折叠座椅,以满足老年人休息需求。


图5.7 折叠座椅示意图
5.6垂直交通设施
5.6.1 垂直交通设施的适老化改造包括楼梯和台阶、电梯、候梯厅、便民提升机等内容。
5.6.2 楼梯和台阶的适老化改造应符合以下规定:
1 应在楼梯梯段起点处、终点处设置明显的警示标志;
2 宜在楼梯梯段设置脚灯,以保证充足的照明;
3 台阶踏步宽度不应小于280mm,踏步高度不应大于160mm,踏步宽度和高度应均匀一致;
4 台阶踏面前缘应设置不凸出踏面的防滑提示条;
5 台阶侧边临空时宜设置侧挡台;

图5.8 侧挡台示意图
6 宜在不影响疏散宽度的基础上,在楼梯两侧设置双层连续扶手,其中上层扶手高度约为850mm~900mm,下层扶手高度约为650mm~700mm,扶手与墙间应有40mm~50mm的空隙,扶手直径宜为38mm;
7 扶手宜采用防滑、热惰性好、颜色鲜明的材料。
5.6.3 电梯的适老化改造应符合以下规定:
1 应设置电梯运行上下层显示装置和语音提醒装置;
2 电梯运行速度不宜大于1.00m/s;
3 轿厢门完全开启时间宜保持不小于5s;
4 在轿厢的侧壁上应设高900mm~1100mm带盲文的选层按钮,盲文宜设置于按钮旁,按钮宜采用超大型按钮;有条件时宜设置高600mm的低位选层按钮;
5 轿厢内部三侧轿厢壁均应安装扶手,扶手距地高度宜为850mm~900mm;
6 正对电梯门的电梯轿厢一面,应在距地面高度900mm至顶部安装镜子或有镜面效果的材料,镜子下方宜安装防撞板;
7 有条件时,宜在轿厢中设置座椅,但不应影响电梯按钮、电梯门的正常使用;
8 对于坡地建筑,宜在坡顶处设置中间层电梯厅,连接外部天桥与平台,该电梯厅空间宜满足轮椅回转;
9 电梯载重要求不宜小于450kg,轿厢门净宽不应小于800mm,有条件加装容纳担架电梯的轿厢门尺寸不宜小于900mm;
10 当加装的电梯无法直接与楼栋相连时,宜增设栈道将电梯与楼内人行流线进行连接。
5.6.4 候梯厅的适老化改造应符合以下规定:
1 候梯厅应设置直径不小于1.50m的轮椅回转空间;
2 候梯厅应设置明显清晰的标识,包括楼层导视、安全提示等;
3 候梯厅应设置带盲文的楼层呼叫按钮,面板中心线距地面高度850mm~1100mm,且距内转角处侧墙距离不应小于400mm;
4 候梯厅应设置音频报站及上下行提示;
5 候梯厅宜设置扶手,扶手应距地面高度850mm~900mm;
6 在不影响消防和疏散的前提下,宜在候梯厅中设置置物平台、座椅等,以满足老年人的置物、休息及交往需求。

图5.9 候梯厅示意图
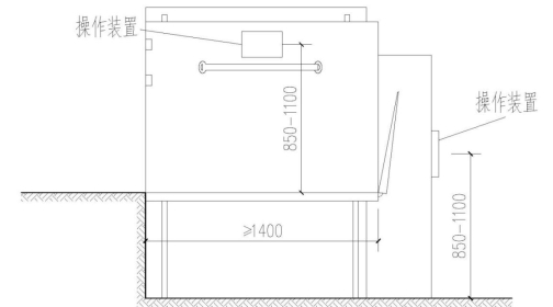
5.6.5便民提升机的适老化改造应符合以下规定:
1 便民提升机应设档板和扶手;
2 斜向式便民提升机深度不应小于1200mm,宽度不应小于900mm,当条件受限时,宜设置楼道提升椅;
3 垂直式便民提升机深度不应小于1400mm,安装通道净宽不应小于900mm;操作装置应设置于地面上方850mm~1100mm的范围内;
4 便民提升机安装前应对墙体结构进行评估,避免因安装导致安全隐患;
5 当加装便民提升机影响楼梯平台水表、电表、燃气表、消防箱、弱电分线箱等既有设备的设置和使用时,应对受影响的既有设备和管线进行改造。

图5.10-1 斜向式便民提升机示意图

图5.10-2 楼道提升椅示意图

图5.10-3 垂直式便民提升机示意图
6.1一般规定
6.1.1 住区环境的适老化改造包括绿地景观、活动场地、照明系统等内容。
6.1.2 住区环境改造后应满足老年人日常通行、活动交流、应急疏散等需求,形成的安全、便利、舒适的适老化住区环境。
6.1.3 环境改造应深度挖掘住区特色文化,尊重及利用具有历史文化价值的街巷和景观,保护住区内的历史建筑及古树名木。
6.1.4 环境改造应考虑与周边环境和建筑风格相协调,体现重庆地方特色风貌,反映住区原有的生活氛围,保持老年人对环境认知的延续性。
6.2绿地景观
6.2.1 出入口、转角等转弯处不应种植遮挡视线的树木,以保持较好的通视性。
6.2.2 绿地应以植物造景为主,种植设计以本地植物为主,具有艺术感染力,富于季相变化,宜增加一些花、叶较大的观赏植物,实现四季有花、四季有景。
6.2.3 绿化植物宜以落叶乔木为主,林下净空不应小于2.50m,乔木种植点距离路缘石外侧不宜小于500mm。
6.2.4 树池高出地面的高度不宜小于50mm,与地面相平的树池应加箅子,箅子方向应与道路方向垂直。
6.2.5 其他绿化植物宜选择具有保健功能的康养植物,不应选用带刺、有毒、根茎易露出地面、易飞絮、有刺激性气味、易致人过敏、落果有危险的植物。
6.2.6 植物种植密度应符合相关标准要求,确保住区通风路径畅通,避免局部气流阻滞和墙体潮湿。
6.2.7 住区水景边缘宜设置栏杆,无栏杆的水池近岸1500mm范围内深度不应大于500mm。

图6.1 无栏杆水池示意图
6.2.8 园林小品如亭、廊、榭等有条件改造的,改造后出入口净宽度不宜小于1.50m。
6.3活动场地
6.3.1活动场地应与车行道进行隔离,宜与服务活动用房的出入口临近设置,与绿地景观结合设置。
6.3.2 活动场地改造应结合老年人生活习惯和社交需求,增加楼前活动场地、集体活动场地、代际交流活动场地等类型。
6.3.3 活动场地铺装及尺寸应保证使用安全,宜选用防滑、透水透气且安全性能高的地面材料。
6.3.4 活动场地宜设置在地势平缓区域,有高差或坡度时,应视情况设置安全防护措施。
6.3.5 场地布局宜动静分区,并设置适老化卫生间、健身器材、棋牌、座椅、花架、阅报栏等设施。
6.3.6 活动场地休息座椅的适老化改造应符合以下规定:
1 具有扶手和靠背,便于老年人起身撑扶;
2 座面高度应为400mm~500mm,椅背高度宜为630mm,椅背角度宜为103°~112°;
3 扶手与座面的距离宜为200mm~250mm、扶手外径宜为40mm~50mm;
4 扶手转角宜做倒圆角处理;
5 座椅与人体接触的材料应保证体感舒适,且不易产生静电。
6.3.7 休息座椅旁应设置轮椅停留空间,尺寸不应小于为800mm×1300mm,以便乘坐轮椅的老年人休息和交谈。

图6.2 轮椅席位示意图
6.3.8 结合住区人口数量和结构,活动场地宜配置合理数量的自动体外除颤器(AED)。
6.4照明系统
6.4.1 老旧住区道路的坡道、拐角及台阶处、室内公共空间、室外活动空间与标识系统处应设置照明设施。
6.4.2 照明设施的安全性,防护等级应符合相关标准规定。
6.4.3 照明设施应合理选择照明方式和灯具,宜选用柔和漫射的光源,避免造成眩光。
6.4.4 老年人经常活动的场所应适当提高照度,照度标准宜高于平均照度标准值的1.5~2倍,各位置平均照度标准值应参照表6-1。
表6-1 各位置平均照度标准值
|
位置 |
参考平面 |
平均照度标准值(lx) |
|
走廊、楼梯间、 |
地面 |
100 |
|
电梯前厅 |
地面 |
75 |
|
车道 |
地面 |
50 |
|
车位 |
地面 |
30 |
|
活动场地 |
地面 |
30 |
|
人行道路 |
地面 |
20 |
7.1一般规定
7.1.1 配套空间的适老化改造包括服务活动用房、公共卫生间等内容。
7.1.2 配套空间地面应平整、防滑、无反光,采用便于清扫、耐污、耐磨的材质。
7.1.3 改造后的配套空间应为老年人提供安全且多样的日常服务,丰富提升老年人生活。
7.1.4 鼓励利用住区闲置建筑改建为服务活动用房。
7.1.5 服务活动用房内应配置防排烟和通风、空调、采暖设备和适老辅具,并满足相关规范要求。
7.2服务活动用房
7.2.1 服务活动用房适老化改造包括老年人日间照料中心、卫生服务站、便民服务站、商业网点、公共卫生间等内容。
7.2.2老年人日间照料中心应设置在日照良好处,并根据建筑面积合理设置老年人的生活服务空间、娱乐空间、辅助空间等。
1 生活服务空间宜设置餐厅(含配餐间)、休息室和沐浴间(含理发室);
2 娱乐空间宜设置阅览室(含书画室)、棋牌室等;
3 辅助空间宜设置洗衣房、卫生间等。
7.2.3 老年人日间照料中心的居室设置日托床位应符合以下规定:
1 每间居室宜按不小于6.00m2/床的标准配置床位,床与床之间应有分隔措施,保护个人隐私;
2 居室内应留有轮椅回转空间,主要通道的净宽不宜小于1.05m,床边留有护理、急救操作空间,相邻床位的长边间距不应小于1.20m;
3 居室入口宜设置帮助识别与记忆的小物件放置处,或设置醒目明晰的图形或色彩标识;
4 居室内宜配置符合适老化要求的卫生间。

图7.1 老年人日间照料中心示意图
7.2.4 卫生服务站的适老化改造应符合以下规定:
1 卫生服务站应符合国家卫生标准,提供预防、医疗、康复、防疫等服务;
2 卫生服务站宜设有全科诊室、治疗室、处置室、预防保健室等,提供健康诊疗和康复诊疗服务。
7.2.5 便民服务站、商业网点等其他服务活动用房的适老化改造应符合以下规定:
1 老年人经常性活动的场所内的墙角、柱子和物品凸出物应采取防撞措施;
2 老年人活动区域应根据现场条件设置扶手;
3 老年人等候区宜设置爱心座椅和轮椅休息区。
4 宜配置便利店、超市、菜市场、洗衣店、理发店和家政服务等便民场所。
7.2.6 服务活动用房内应设低位服务设施,低位服务设施上表面距地面高度应为700mm~850mm,底部应留出高650mm、深450mm供乘轮椅者膝部和足尖部的移动空间,并宜配置助听器和放大镜。

图7.2 低位服务设施示意图
7.3公共卫生间
7.3.1 公共卫生间出入口有高差时应设置轮椅坡道,条件受限时应设置便民坡道。
7.3.2 公共卫生间的门应外开或可以从外面打开,通行净宽不应小于800mm。
7.3.3 公共卫生间应设置坐便器或活动坐便椅。
7.3.4 公共卫生间内应设置直径不小于1.50m的轮椅回转空间。
7.3.5 公共卫生间内其他设施的适老化改造应符合以下规定:
1 坐便器两侧应设置颜色鲜明的安全抓杆,轮椅接近坐便器一侧应设置可垂直或水平90°旋转的水平抓杆,另一侧宜设置L型抓杆;
2 坐便器旁应设置一次性纸垫盒、卫生纸盒、呼叫按钮等装置;
3 洗手台的水嘴中心距侧墙应不小于550mm,其底部应留出宽750mm、高650mm、深450mm供乘轮椅者膝部和足尖部的移动空间,并在洗手盆上方安装镜子,出水龙头宜采用杠杆式水龙头或感应式自动出水方式;
4 在洗手台上方应安装倾斜镜子,镜子底端距地面不应大于1.00m,镜子高度应不小于800mm,镜子宜向下倾斜10°;
5 卫生间内靠近坐便器附近应设置高低位按呼叫按钮,高位按钮距地面宜为800mm~1000mm,低位按钮距地面宜为400mm~500mm。

图7.3-1 公共卫生间示意图
|
|
|
图7.3-2 坐便器示意图 |
|
|
|
图7.3-3 洗手台示意图 |
8.1一般规定
8.1.1 信息与服务的适老化改造包括标识系统、智能系统、社区服务等内容。
8.1.2 改造后应形成正确、连贯、易于识别的标识系统,建立智能便利的安全和服务体系,提供类型多样的社区服务,形成安全、智慧、多元的适老化住区。
8.2标识系统
8.2.1 老旧住区应建立完整的标识系统,包括引导标识、设施标识、警示标识等。
8.2.2 标识系统应设置在出入口、道路分岔口、拐点、主要活动场地、建筑附近等老年人主要的生活流线上。
8.2.3 标识应安装牢固,边角宜圆弧处理。
8.2.4 标识安装位置的中心线距地面高度宜为1.35m,标识内容的距地面高度宜在0.70m~1.75m之间。

图8.1 标识安装位置示意图
8.2.5 标识系统应色彩鲜明、图案清晰、字体醒目、通俗易懂,视距与标识色彩亮度比、对比度关系宜符合表8-1的规定。
表8-1 视距与标识色彩亮度比、对比度关系
|
视距 |
色彩亮度比 |
相应色彩对比度 |
|
≤2m |
≥2.0 |
≥50% |
|
2m~5m |
≥5.0 |
≥80% |
8.2.6 标识系统字体和图案应适当做放大处理。
8.2.7 标识宜结合语音信息、触感信息、盲文信息、智能化等辅助手段来增强导视信息,并具有夜间显示功能。
8.3智能化系统
8.3.1 智能化系统改造应针对智慧养老发展需求,为物联网设备、智能服务终端等设施预留安装条件。
8.3.2 智能化系统应包括视频监控系统、自动报警系统、紧急呼叫系统等。
8.3.3 视频监控系统的适老化改造应符合以下规定:
1 活动场地、停车位附近、建筑的各出入口、走廊、各楼层的候梯厅、楼梯间、电梯轿厢等场所应设置视频监控系统;
2 视频监控系统宜针对孤寡老人等重点看护人员,根据进出门记录和时间,智能分析及判断,提醒工作人员远程呼叫或上门查看。
8.3.4 自动报警系统的适老化改造应符合以下规定:
1 室内可能有煤气泄漏危险的区域应设置煤气识别泄漏自动报警系统;
2 室内可能发生火灾危险的区域应设置烟气识别火灾自动报警系统;
3 老旧住区宜为红外人体探测、险情处理、跌倒报警灯等报警设施预留安装点位。
8.3.5 紧急呼叫系统的适老化改造应符合以下规定:
1 活动场地、公共卫生间等应设置紧急呼叫系统;
2 建筑出入口及电梯轿厢内壁应设有紧急呼叫系统;
3 针对特殊照料人群(如失智老人)宜增设防走失装置。
8.4社区服务
8.4.1 社区宜提供医疗卫生、养老、上门照护、文体娱乐、物业管理等服务。
8.4.2 社区宜制定社区居民公约,倡导邻里和谐、尊老爱幼、诚信友善、助人为乐、爱护公物等文明风范,开展文明家庭创建、道德模范宣传等活动。
8.4.3 社区宜构建居民与社区、居民与居民之间的沟通调解机制。
8.4.4 社区宜提供差异化养老服务,社区养老服务组织每月至少开展4次集体社交活动,每次活动时长不少于2小时,活动形式包括但不限于兴趣小组、健康讲座、文体竞赛等。
8.4.5 社区宜提供居家养老上门服务,紧急求助服务响应时间不宜超过24小时。
8.4.6 社区宜设置为老年人提供心理疏导等服务的心理咨询室。
8.4.7 社区宜建立适老化设施故障应急修复机制,一般性故障应在7日内修复,重大结构性损坏需制定专项整改方案。
GB 55019 建筑与市政工程无障碍通用规范
GB 50763 无障碍设计规范
GB 55038 住宅项目规范
GB 50034 建筑照明设计标准
GB 50037 建筑地面设计规范
GB 50180 城市居住区规划设计标准
GB/T 31015 公共信息导向系统 基于无障碍需求的设计与设置原则
GB/T 33168 社区老年人日间照料中心服务基本要求
GB/T 33169 社区老年人日间照料中心设施设备配置
GB/T 50340 老年人居住建筑设计标准
DBJ50T-064 城市道路交通规划及路线设计标准
DBJ50T-376 老旧小区改造提升建设标准
JGJ 450 老年人照料设施建筑设计标准
JGJ/T 484 养老服务智能化系统技术标准
JGJ/T 331 建筑地面工程防滑技术规程
T/ZBDIA 0003 老旧小区适老化改造装修设计导则
T/GBECA 001 既有城市社区养老助残无障碍环境改造标准











